GB/T 9978.2-2019 建筑構件耐火試驗方法 第2部分:耐火試驗試件受火作用均勻性的測量指南
- 發表時間:2022-11-30
- 來源:共立消防
- 人氣:
1 范圍
GB/T 9978的本部分規定了一種試驗方法,用以測量試件在耐火試驗爐中按照GB/T 9978.1的規定進行耐火試驗時的受火作用均勻性。本部分給出了模擬試件表面附近溫度、空氣流速和氧含量等參數測量儀器的類型和布置位置,模擬試件內部為冷彎型鋼骨架,試件受火面的表面為石膏板。
本部分不包括耐火試驗爐的性能要求。
2 規范性引用文件
下列文件對于本文件的應用是必不可少的。凡是注日期的引用文件,僅注日期的版本適用于本文件。凡是不注日期的引用文件,其最新版本(包括所有的修改單)適用于本文件。
GB/T 9775 紙面石膏板(GB/T 9775-2008,ISO 6308:1980,MOD)
GB/T 9978.1 建筑構件耐火試驗 第1部分:通用要求(GB/T 9978.1-2008,ISO 834-1:1999,MOD)
3 術語和定義
GB/T 9978.1界定的以及下列術語和定義適用于本文件。
3.1
耐火試驗爐的有效開口區域 effective area of furnace opening
在儀器監測范圍邊界以內的耐火試驗爐開口區域。
4 試驗裝置
4.1 支承結構(模擬試件)
4.1.1 支承結構采用冷彎型鋼制作支撐龍骨,支撐龍骨的受火面安裝有兩層符合GB/T9775規定的耐火紙面石膏板(H類),每層石膏板的厚度不小于16mm;支撐龍骨的背火面安裝一層厚度不小于18mm的結構面板。
注:采用膠合板或刨花板作為典型的結構面板。
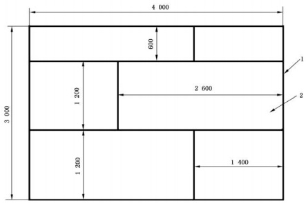
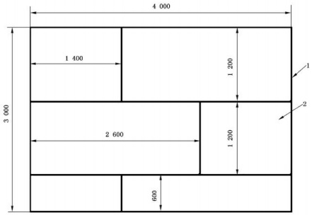
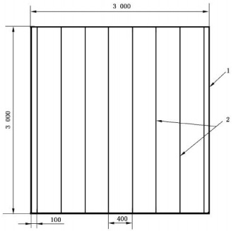
4.1.2 支承結構中,冷彎型鋼支撐龍骨、耐火紙面石膏板和結構面板的詳細組裝構造見圖1~圖6。其中,圖1~圖3為水平支承結構,圖4~圖6為垂直支承結構。圖示尺寸的支撐結構中,水平支承結構適用于開口尺寸為3m×4m的水平耐火試驗爐;垂直支承結構適用于開口尺寸為3m×3m的垂直耐火試驗爐。對應用于其他開口尺寸耐火試驗爐的支承結構,相關尺寸需進行必要的修正。
單位為毫米

說明:
1-水平支承結構的四周邊界;
2-水平支撐龍骨9根,中心間距為450mm。
圖1 水平支承結構構造細節-支撐龍骨布置
單位為毫米

說明:
1-水平支承結構的四周邊界;
2-水平支承結構受火面的內層(第一層)石膏板和背火面的結構面板。
圖2 水平支承結構構造細節-內層石膏板和結構面板安裝布置
單位為毫米

說明:
1-水平支承結構的邊界;
2-水平支承結構受火面的外層(第二層)石膏板。
圖3 水平支承結構構造細節-外層石膏板安裝布置
單位為毫米

說明:
1-垂直支承結構的四周邊界;
2-垂直支撐龍骨8根,中心間距為400mm。
圖4 垂直支承結構的構造細節-支撐龍骨布置
以上為標準部分內容,可點擊下方鏈接下載標準原文:
-
IG541混合氣體滅火系統
IG541混合氣體滅火系統:IG-541滅火系統采用的IG-541混合氣體滅火劑是由大氣層中的氮氣(N2)、氬氣(Ar)和二氧化碳(CO2)三種氣體分別以52%、40%、8%的比例混合而成的一種滅火劑 -
二氧化碳氣體滅火系統
二氧化碳氣體滅火系統:二氧化碳氣體滅火系統由瓶架、滅火劑瓶組、泄漏檢測裝置、容器閥、金屬軟管、單向閥(滅火劑管)、集流管、安全泄漏裝置、選擇閥、信號反饋裝置、滅火劑輸送管、噴嘴、驅動氣體瓶組、電磁驅動 -
七氟丙烷滅火系統
七氟丙烷(HFC—227ea)滅火系統是一種高效能的滅火設備,其滅火劑HFC—ea是一種無色、無味、低毒性、絕緣性好、無二次污染的氣體,對大氣臭氧層的耗損潛能值(ODP)為零,是鹵代烷1211、130 -
手提式干粉滅火器
手提式干粉滅火器適滅火時,可手提或肩扛滅火器快速奔赴火場,在距燃燒處5米左右,放下滅火器。如在室外,應選擇在上風方向噴射。使用的干粉滅火器若是外掛式儲壓式的,操作者應一手緊握噴槍、另一手提起儲氣瓶上的


