GB/T 32833-2016 隔熱耐火磚抗剝落性試驗方法
- 發表時間:2022-12-06
- 來源:共立消防
- 人氣:
1 范圍
本標準規定了隔熱耐火磚抗剝落性試驗方法的術語和定義、原理、儀器設備、試樣、試驗步驟、結果計算及處理和試驗報告。
本標準適用于隔熱耐火磚抗剝落性的測定。
2 規范性引用文件
下列文件對于本文件的應用是必不可少的。凡是注日期的引用文件,僅注日期的版本適用于本文件。凡是不注日期的引用文件,其最新版本(包括所有的修改單)適用于本文件。
GB/T 8170 數值修約規則與極限數值的表示和判定
GB/T 16839.1 熱電偶 第1部分:分度表
GB/T 16839.2 熱電偶 第2部分:允差
GB/T 18930 耐火材料術語
3 術語和定義
GB/T 18930界定的術語和定義適用于本文件。
4 原理
在規定的試驗溫度和一定壓力的空氣為冷卻介質的條件下,一定形狀和尺寸的試樣在經受急熱急冷溫度突變后,通過試驗前后試樣的質量損失率來確定隔熱耐火磚的抗剝落性。
5 儀器設備
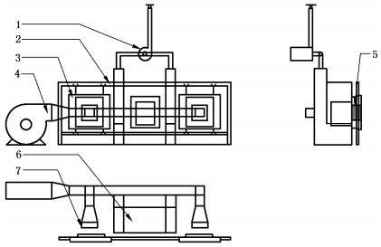
5.1 嵌板裝置
主要由測試樣磚、保護磚、隔熱材料、嵌板框架組成。嵌板裝置具體的結構輪廓見圖1。
5.2 加熱裝置
加熱裝置用于試驗樣品的加熱和抗剝落性試驗。加熱裝置內溫度應能夠達到1400℃,爐溫用熱電偶測量,加熱過程采用自動化控制,溫差不超過±10℃。在移動嵌板裝置過程中,加熱裝置內溫降不超過30℃,并于5min內能恢復到規定溫度。具體的結構輪廓見圖2。
單位為毫米

說明:
1——嵌板框架;
2——隔熱材料;
3——保護磚;
4——測試樣磚。
圖1 嵌板裝置

說明:
1——排煙風機;
2——嵌板吊架;
3——嵌板裝置;
4——鼓風機;
5——測試樣磚;
6——加熱爐膛;
7——出風口。
圖2 加熱裝置結構圖
5.3 溫度測量裝置
采用能適用于試驗溫度的熱電偶(見GB/T 16839.1或GB/T 16839.2),溫度控制儀用于控制升溫速率。
5.4 急冷裝置
5.4.1 鼓風機
作用是將規定壓力的清潔、干燥空氣提供給送風系統。
5.4.2 送風系統
將來自鼓風機的冷空氣通過風道送至試樣急冷區域。出風口為460mm×460mm的方口,出風口距離測試樣磚250mm,風速為(10±0.5)m/s。
5.5 轉移裝置
用于滑動嵌板裝置。
5.6 電熱鼓風干燥箱
使用溫度范圍為0℃~300℃。
5.7 天平
分度值為0.1g。
6 試樣
6.1 試樣尺寸
采用230mm×114mm×65(75)mm的直形磚試樣。當磚型較大時,可以在大磚上切取符合上述尺寸要求的試樣,每塊制品上只能切取一個試樣。
6.2 試樣數量
試樣數量為14塊(230mm×114mm×65mm)或12塊(230mm×114mm×75mm)。
7 試驗步驟
7.1 試樣干燥
試樣在(110±5)℃下干燥至恒量,干燥后的試樣不得再次受潮。
7.2 磚墻碼砌
7.2.1 稱量每塊試樣的質量m。,精確到1g,并在每塊試樣測試面為230mm×65(75mm)的面上做好標記編號。
7.2.2 將試樣干碼砌成面積為460mm×460mm的磚墻作為測試樣磚,測試樣磚的測試面應拍照存檔。
7.2.3 測試樣磚的四周采用合適等級的保護磚,其他部分采用滿足使用條件的隔熱材料。
7.2.4 采用合適等級的保護磚碼砌成磚墻作為保護墻,用于加熱裝置升溫過程以及測試樣磚移開急冷時,封堵加熱裝置爐口。
7.3 磚墻急熱過程
在加熱裝置升溫過程中,由保護墻封堵住爐口。試驗溫度應比測試磚實際最高使用溫度低10℃~40℃或協商確定。以最快升溫速率將爐溫升至試驗溫度并保溫10min,隨后移開保護墻,將測試樣磚迅速移至加熱裝置爐口,在該溫度下保持10min。
7.4 磚墻急冷過程
7.4.1 將在試驗溫度下保溫10min后的測試樣磚,迅速移至冷卻裝置前以(10±0.5)m/s的風速吹風急冷10min,然后再移至加熱裝置爐口,急熱10min。測試樣磚重復該急熱急冷過程,直至達到10次循環。
7.4.2 10次急熱急冷循環結束后,關閉加熱裝置,用保護墻封堵爐口,將測試樣磚在室溫下自然冷卻。
7.5 磚墻拆解
冷卻后,將測試樣磚的測試面拍照存檔,之后小心地拆解磚墻,注意保持試樣完整,避免破壞。將拆解后的試樣按原碼砌位置堆放,拆解中的試樣剝落部分裝袋,再次拍照存檔。
7.6 試樣的測量
將試樣烘干至恒量后,再次稱量每塊試樣的質量m1,精確至1g,記錄數值。
以上為標準部分內容,如需看標準全文,請到相關授權網站購買標準正版。
-
IG541混合氣體滅火系統
IG541混合氣體滅火系統:IG-541滅火系統采用的IG-541混合氣體滅火劑是由大氣層中的氮氣(N2)、氬氣(Ar)和二氧化碳(CO2)三種氣體分別以52%、40%、8%的比例混合而成的一種滅火劑 -
二氧化碳氣體滅火系統
二氧化碳氣體滅火系統:二氧化碳氣體滅火系統由瓶架、滅火劑瓶組、泄漏檢測裝置、容器閥、金屬軟管、單向閥(滅火劑管)、集流管、安全泄漏裝置、選擇閥、信號反饋裝置、滅火劑輸送管、噴嘴、驅動氣體瓶組、電磁驅動 -
七氟丙烷滅火系統
七氟丙烷(HFC—227ea)滅火系統是一種高效能的滅火設備,其滅火劑HFC—ea是一種無色、無味、低毒性、絕緣性好、無二次污染的氣體,對大氣臭氧層的耗損潛能值(ODP)為零,是鹵代烷1211、130 -
手提式干粉滅火器
手提式干粉滅火器適滅火時,可手提或肩扛滅火器快速奔赴火場,在距燃燒處5米左右,放下滅火器。如在室外,應選擇在上風方向噴射。使用的干粉滅火器若是外掛式儲壓式的,操作者應一手緊握噴槍、另一手提起儲氣瓶上的


